借りる(賃貸)
マンション・アパート
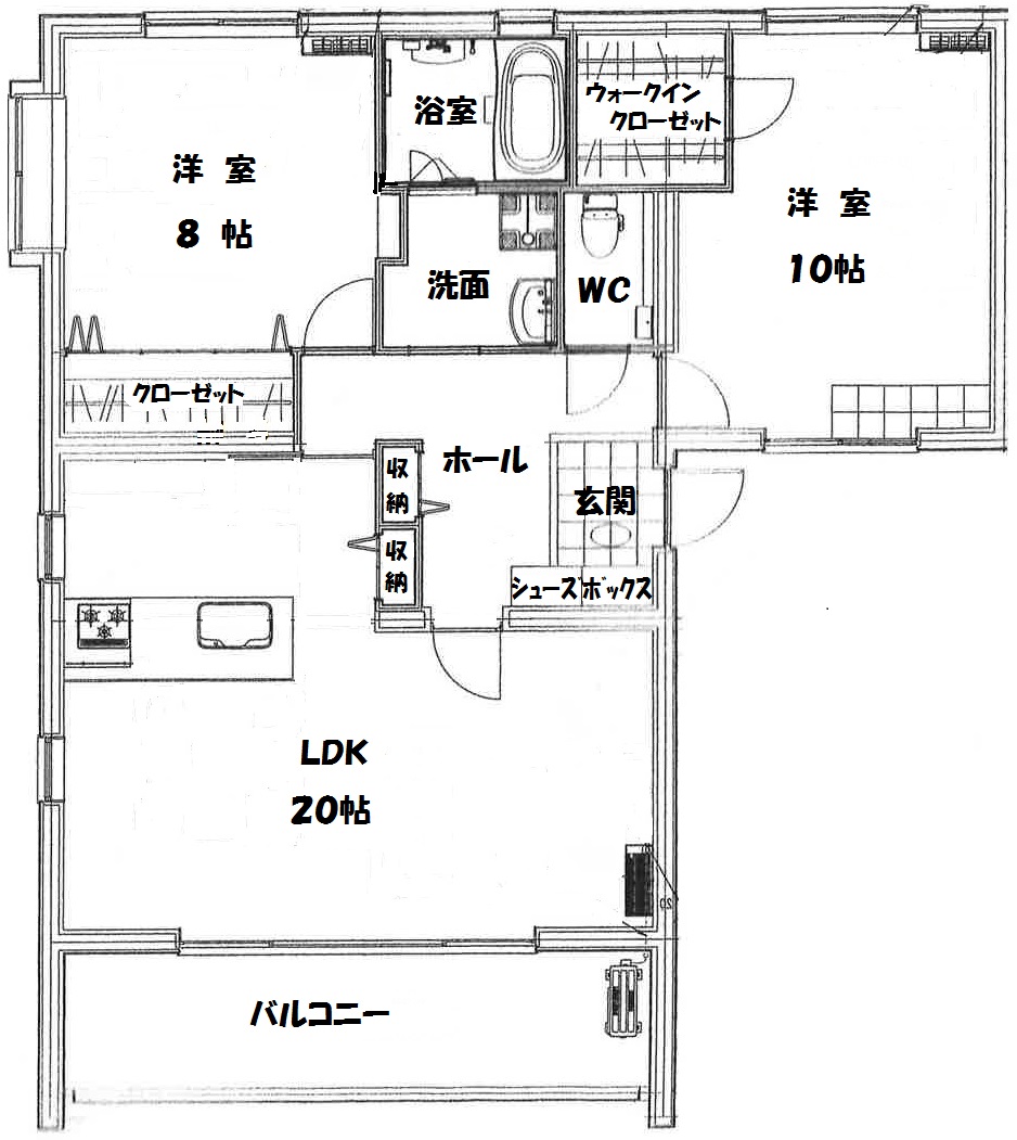
貸マンション 細島町 2LDK 15.5万円
おすすめポイント
2階建には珍しく鉄筋コンクリートのマンションです。おしゃれに、頑丈に、造りました!床の厚さは25cmと分譲マンションレベルです。
|
物件種目 |
貸マンション |
|||
|---|---|---|---|---|
|
間取りタイプ |
2LDK |
|||
|
賃貸条件 |
賃料 15.5万円 |
|||
|
礼金 なし 敷金 2 ヶ月 保証金 なし |
||||
|
物件所在地 |
浜松市中区細島町184-1 |
|||
|
交通 |
遠州鉄道 助信 徒歩16分 |
|||
| JR浜松駅からバス9分乗車→細島町バス停下車徒歩3分 | ||||
| 建物 |
建物名 |
ロジェマン 202 |
||
|
構造・規模 |
RC 2階建/2階部分 |
|||
|
使用部分面積 |
90m² |
|||
|
間取り内訳 |
2LDK |
|||
|
築年数 |
2016年 |
契約期間 |
2年 |
|
|
管理費等 |
なし |
|||
|
駐車場 |
2台無料・3台目は5000円で賃借可能 |
|||
|
現況 |
空家 |
入居日 |
即日 |
|
|
設備 |
追い焚き機能付き広々お風呂(1.25坪)、シャンプードレッサー、ウォシュレット、カウンターシステムキッチンキッチン、フローリング、モニターつきインターホン(子機付き)、全室エアコン、防犯サッシ(10帖のお部屋のみ)、ペアガラス、ウォークインクローゼット、バルコニー、バルコニー水栓、シューズボックス、ハイサッシ、外観タイル張り、自転車・バイク置き場 |
|||
|
保険等 |
加入要 |
|||
|
その他 |
SOHO使用可能です。そのために10帖の洋室にはコンセントを多めにしまして、玄関とは別に来客者出入り可能なサッシとしました。 |
|||